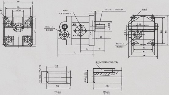
用途与说明 HLCB-D型恒流溢流泵主要用于工程机械、农业机械等各种车辆的液压动力转向系统,可为全液压转向器或液压助力器提供恒定不受发动机(或油泵)转速影响的流量,以保证液压动力转向系统可靠、稳定地工作,恒流流泵是在CBN—F300系列齿轮泵上集成恒流溢流阀而成。结构紧凑,使用方便。该泵基型分为四种规格,按恒流量分九种流量。国际上,这种恒流溢流泵已成为各种车辆液压动力转向系统用泵的主要形式。 型号说明 外形图 性能参数